В сложной архитектуре современной вертикальной транспортировки безопасность является не просто особенностью, а строгим инженерным требованием. Маслян...
ЧИТАТЬ ДАЛЕЕ



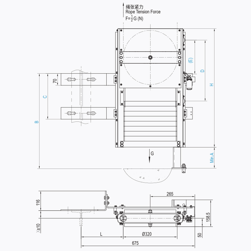
Натяжное устройство лифта LTD05 Механические части лифта предназначены для вертикального натяжения высокоскоростных лифтов. Это натяжное устройство лифта использует точную механическую конструкцию и передовую технологию управления, чтобы гарантировать, что трос всегда поддерживает надлежащее натяжение во время работы лифта, тем самым предотвращая опасные ситуации, вызванные ослабленными или оборванными тросами. С точки зрения конструкции, Натяжитель лифта LTD05 изготовлен из прочных материалов и имеет оптимизированную механическую конструкцию, что позволяет ему стабильно работать в различных сложных условиях. Натяжитель и направляющая система устройства прошли тщательные испытания, чтобы гарантировать, что они не изнашиваются и не выходят из строя при длительном использовании.
| № | Веревка Диаметр (мм) |
А (мм) |
Б (мм) |
С (мм) |
Д (мм) |
(Е) (мм) |
Х (мм) |
Л (мм) |
Х (мм) |
Бlock Материалы |
Веревка Tension Force F (N) |
| А01 | φ8 | 200 | 635 | 270 | 360 | 200 | 700 | 250 | 35 | СП | 245 |
| А02 | φ8 | 200 | 635 | 270 | 360 | 200 | 700 | 250 | 35 | СП | 370 |
| А03 | φ8 | 230 | 805 | 320 | 410 | 230 | 1100 | 250 | 35 | СП | 490 |
| А04 | φ8 | 230 | 805 | 320 | 410 | 230 | 1100 | 250 | 35 | СП | 610 |
| А05 | φ8 | 230 | 805 | 320 | 410 | 230 | 1100 | 250 | 35 | СП | 860 |
| А06 | φ8 | 230 | 805 | 320 | 410 | 230 | 1100 | 250 | 35 | СП | 950 |
| № | Диаметр шкива (мм) | Веревка Diameter (mm) | Бlock Materials | Веревка Tension Force F (N) |
| Б01 | 240 | φ8 | СП | 300 |
В сложной архитектуре современной вертикальной транспортировки безопасность является не просто особенностью, а строгим инженерным требованием. Маслян...
ЧИТАТЬ ДАЛЕЕПонимание систем безопасности в лифтах Защитное снаряжение Лифт Системы являются одними из наиболее важных компонентов механической безопасно...
ЧИТАТЬ ДАЛЕЕВ индустрии вертикальных перевозок безопасность остается первостепенной задачей для инженеров, архитекторов и управляющих недвижимостью. Среди множества комп...
ЧИТАТЬ ДАЛЕЕЦелостность любой вертикальной транспортной системы зависит от молчаливого, не подлежащего обсуждению договора безопасности. Эта безопасность — не абстрактна...
ЧИТАТЬ ДАЛЕЕ